APPARTAMENTO CON DUE CAMERE E GARAGE IN CLASSE “A4” – RIF. C102 – APP. 5 PAL. 1 CASTELFRANCO EMILIA

€ 239,000
Cantiere aperto
RIF: C102 - APP. 5 PAL. 1
Tipo di proprietà: APPARTAMENTI
Mq Commerciali
95.4
Sala e Zona cottura
1
Camere da letto
2
bagni
1

Dettagli Principali

  • Superficie Edificata: 95.4
  • Anno di costruzione: 2025

Dettagli Aggiuntivi

  • BALCONE
  • CANCELLO ELETTRICO
  • FIBRA OTTICA
  • GARAGE
  • GIARDINO CONDOMINIALE
  • INFISSI IN PVC O ALLUMINIO
  • PORTA BLINDATA
  • PREDISPOSIZIONE ARIA CONDIZIONATA
  • RIPOSTIGLIO
  • RISCALDAMENTO A PAVIMENTO
  • STRUTTURA ANTISISMICA
  • VIDEOCITOFONO

Descrizione

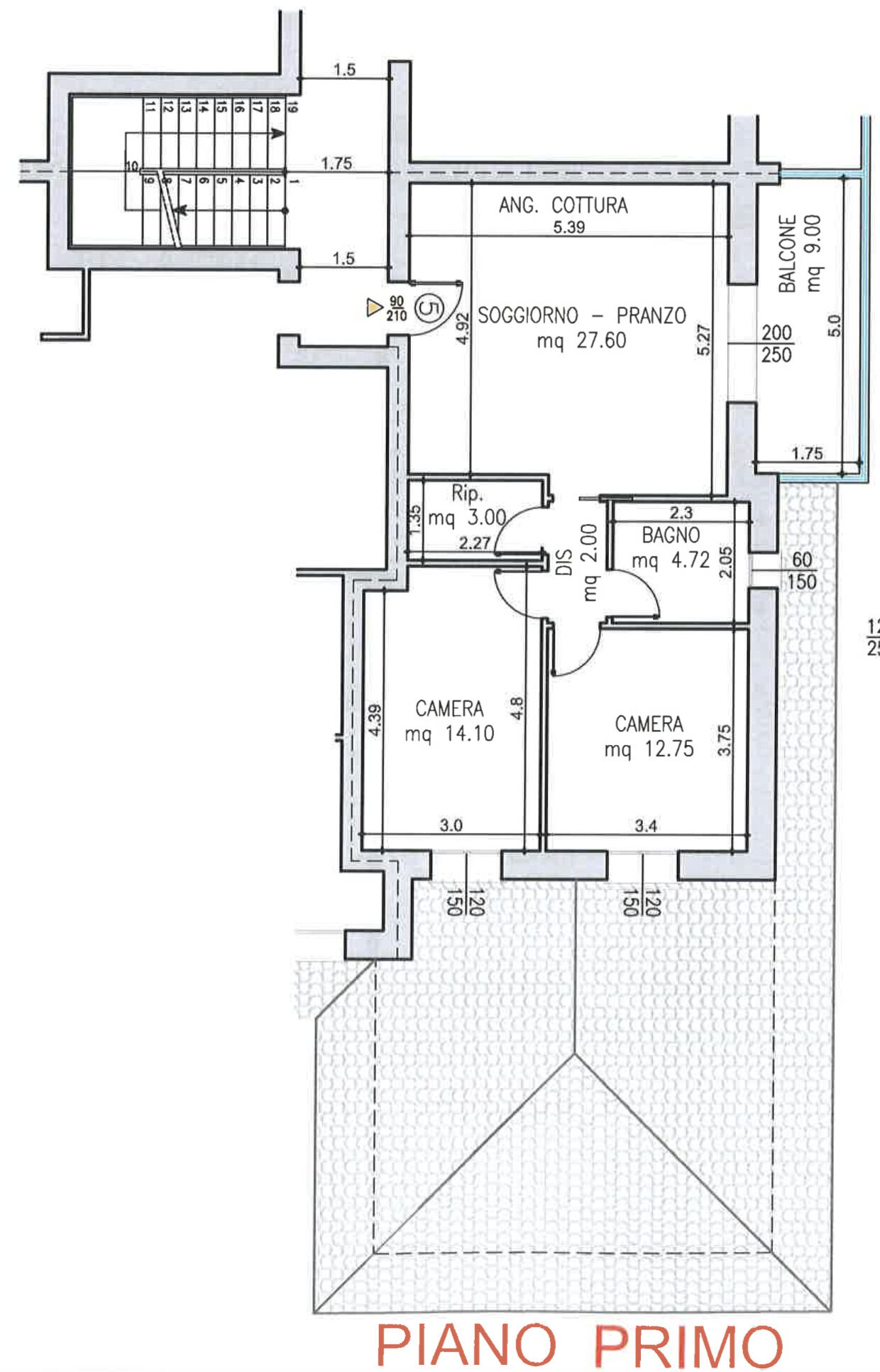
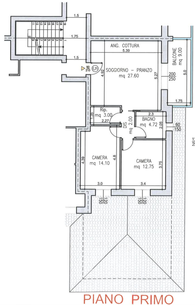
CASTELFRANCO EMILIA (VIA LODA) – In prossimo intervento residenziale in classe “A4”, proponiamo in vendita appartamento posto al primo piano e composto da: ingresso su soggiorno con angolo cottura di 27 mq, disimpegno notte, due camere da letto, ripostiglio, bagno, balcone e garage al piano terra. Ottimo capitolato e finiture di pregio. Per avere maggiori informazioni e per visionare il progetto vi aspettiamo in ufficio oppure chiamate il numero 334/6282923. Consegna estate 2027.

Contatta l'agente

Vittorio Chiocca

Sede Castelfranco Emilia